mialanomediglia
Sito attivo da: 4 anni 23 giorni
ID Annuncio: 3095461
appartamento mq60 Buono
Annuncio Immobili e Terreni
Immobili e Terreni Residenziale Vendita Lombardia Bellinzago LombardoIn dettaglio
Tipo di annuncio:
offro
Tipo di immobile:
appartamento
Superficie (mq):
60
Stato dell'immobile:
Buono
Piano dell immobile:
primo piano
Numero locali:
due
Numero bagni:
uno
Venditore:
Privato
Prezzo:
€ 110000
Anno di costruzione:
2014
Classe energetica:
F
Indice Prestazione Energetica (IPE):
IPE 110,25
Descrizione
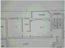
VENDESI in BELLINZAGO LOMBARDOal 1Piano di Due, Appartamento di 2 Locali Più servizi di Mq 60 comm. Al Prezzo €. 110. 000, 00 si presenta in Ottime Condizioni, Classe energetica (F) IPE gl. nren 110, 25. L’anno di Costruzione della Palazzina e del2014, le spese condominiali sono minime di 55/60 € al mese, l’appartamento e descritto cosi, con un ingresso soggiorno e angolo cottura con terrazzino, dal disimpegno passiaamo nella zona notte dove troviamo, ripostiglio e bagno padronale, la ampia camera matrimoniale, il riscaldamento e autonomo i serramenti sono in legno con doppi vetri e zanzariere il portoncino di ingresso blindato. L’appartamento e predisposto per un eventuale impianto di raffrescamento. Può esserci una possibilita di aquistare a € 8. 000 un posto auto di propietà coperto e recintato che viene meso in sicurezza dal cancello automatico. Nel paese ci sono tutti i servizi e fermate di mezzi pubblici che conducono in GESSATE al capolinea della Linea Verde come pure nei paesiZona o quartiere dell'immobile:
centrale
Prezzo: € 110.000








Condividi su Facebook 